|
51 Picardy Road
Belvedere
https://www.whatpub.com/chequers
Above postcard, date unknown, kindly sent by Martin Archer. |
Above photo 2006 by Dave Patten
Creative Commons Licence. |
Above photo, 2006 by Steve Thoroughgood. |
Above photo, date unknown. |
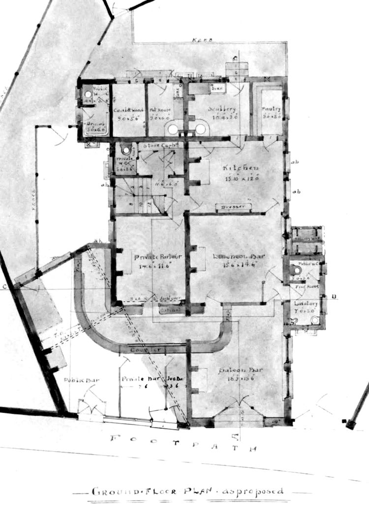
Above Ground Floor plan, for proposed building, date unknown. |
Originally, a pub by this site was called the "Crooked
Billet," but it was renamed the "Chequers" iaround about 1857 after a
similarly named pub out on Belvedere Marshes.
It was substantially altered in 1907 sounding very posh, it proudly
featured a 'large luncheon bar'.
As Jim Packer explains in his wonderful book on Bexley pubs "Though riot
as near as other pubs to the factories on the marshes with their large
workforce of potential drinkers. The Chequers did a surprisingly high trade.
The annual barrelage for some sample years was 1901 - 512, 1908 - 450, 1916
- 382, and 1918 (when other pubs had a little increase) - a staggering
1,119!"
A 1980s S.E. London pub guide describes it, quite charmingly, as "Small
rare old local, near the station...The type of pub which needs an
'endangered species' order placed on it. Good value quality fare offered in
quiet, civilized surroundings"...
Alas, like so many other pubs, it failed to survive - but at least the
building did.
It is a possibility that this pub is the same as the "Chequers"
I have addressed at Erith.
|
Kentish Independent, Friday 13 May 1904.
Theft of cash box and contents.
William Green, and electrical engineer, of 10, May Place, Bexleyheath,
was on remand at Dartford on Friday, charged with stealing a cash box
containing £105, the property of Frederick Middleton, landlord of the
"Chequers," Belvedere. The theft was alleged to be committed on the 28th
ult.
Mr. Clinch, who prosecuted, stated that £104 2s. 5 1/2d. of the money
had been found in prisoners possession.
Prosecutor, in giving evidence, said that on the morning in question the
cash box containing £105 on the mantelpiece of his private parlour at the
back of the bar. The money consisted of three £5 Bank of England notes,
and the reminder in gold and silver. The number of one of the notes he
afterwards ascertained to be 99,284, and the date November 21st, 1903,
he having obtained the notes from the bank at Belvedere that morning.
Witness had left the door ajaw. Prisoner was an occasional customer. On
the day in question prisoner came to his house at about 2:30, and after
he had been served with drink witness noticed him leave the bar for the
back of the house at about 4:15. Witness was at that time talking to
other customers, during which prisoner had been in the front of the bar.
At about 4:30 witness afterwards noticed prisoner coming from the
direction of his private parlour into the bar, finish his drink and
leave the house. Witness did not miss the cash box till 8 o'clock that
evening, when he had occasion to go to it for change. He gave
information to the police, and had since identified the cash box shown
him by the police as his property.
Florence Yerlett, a servant in the employ of prosecutor, said that at
about 4 p.m. on the day in question she was in the kitchen, when
prisoners looked through the window from the side yard and walked away
on seeing her. There was a door from the private bar into an adjoining
passage. About 10 minutes later prisoner again looked through the
window, and said. "How are you getting on?" Witness replied. "Alright,
thank you" and he again went away. At 4:30 witness met him in the
passage between the doors of the public private parlour. he had no right
as a customer to be there. The door of the private parlour was wide
open. He said something to witness, but she did not understand what it
was. Witness said nothing about the matter to her master at the time,
but in the evening made a communication to the detectives.
Detective Clyne said that he kept observation on prisoners residence
throughout the night till 8:30 the following morning, when the door was
opened by prisoners daughter. Witness then with two other officers
entered the house, and found prisoner in his bedroom.
Witness informed him that they were police officers, and that he should
take him into custody on suspicion of stealing a cash box containing
about £100. Prisoner replied:- "I know nothing about it; I have nothing
to fear." Witness then conveyed prisoner to the Bexleyheath police
station, where he was detained. Witness returned and searched the house,
where he found £73 10s. in gold wrapped in a rag at the bottom of a
toolbox. He return to the police station, where prisoner was charged.
Witness on searching him found £1 10s. in gold on him, £1 11s. 3d. in
silver, and 1s, 2 1/2d., in bronze. Prisoner afterwards asked for
witness, and said to him:- "I'll tell you where the cash box is. If you
look over the back fence at the "Chequers" you will find it there."
adding that he threw it there. Witness found the cash box on the spot
describe a prisoner.
Detective Golding corroborated the previous witnesses evidence, and
stated that he remained in the house while detective Clyne went back to
the "Chequers." He found a cardboard box (produced) which contained £12
10s. in silver and three £5 banknotes. he conveyed prisoner to the
station said to him. "Tom, you've upset my arrangements. I was going
from here to Liverpool Street, to Harwich to Havre, Queenstown and by
the Red Star Line to New York, afterwards to my brother, who is doing
all right in South Africa."
Prisoner was committed for trial at the Quarter Sessions.
The Chairman complimented Detectives Clyne and Golding on the way they
had conducted the case, saying it had been carried out quietly and with
discretion.
|
I am informed that the pub closed in 2007 and by 2019 had been mostly
demolished and rebuilt and converted into 12 flats built by
the London and Quadrant Housing Trust.
LICENSEE LIST
BARBER E 1862+
BARBER Louisa to Dec/1866
THOMAS James Dec/1866+
TOZER Henry 1874+
EMMS Thomas 1881-82+ (age 35 in 1881 )
LITTLETON F Mr Feb/1891+

BROWN John to July/1892

COLLISON Mr July/1892+

MILTON Frederick 1896+
MIDDLETON Frederick 1903-04+

GAZE Thomas P 1913-21+
SUMNER William James 1922+
LISTER Benjamin M 1930+
SMITH Ernest 1938+
https://pubwiki.co.uk/Chequers.shtml
http://www.closedpubs.co.uk/chequers.html
From the Kelly's Directory 1903
Census
Maidstone
and Kentish Journal
Kentish Mercury
|