DOVER KENT ARCHIVES

Sort file:- Tunbridge Wells, May, 2026.

Page Updated:- Thursday, 28 May, 2026.

PUB LIST PUBLIC HOUSES Paul Skelton

Earliest ????

Windmill Tavern

Closed 2001

32 North Street

Royal Tunbridge Wells

https://whatpub.com/windmill-tavern

Windmill Tavern

Above photo, date unknown.

Windmill Tavern 1938

Above photo, circa 1938, kindly sent by Rory Kehoe. Showing the pub in the livery of E & H Kelsey's Culverden Brewery, which was located on the north side of the town. It's possible that the lady in shot is Mrs Richards, co-licensee of the "Windmill." In 1948 Kelsey's was taken over by J W Green's Phoenix Brewery, Luton, which changed its name to Flower's Breweries in 1954 when they acquired Flower & Sons' Brewery of Stratford-upon-Avon. All change again when, in 1961, Whitbread's snapped up Flower's Breweries and the "Windmill" was one of about 50 pubs in Kent keeping the signwriters busy for the third time in only 13 years.

Windmill Tavern

Above photo, date unknown.

Above photo 2010 by Nigel Chadwick Creative Commons Licence.

 

From the Southeastern Gazette, 6 March 1866.

Petty Sessions, Tuesday.

(Before A. Pott, Esq., in the chair, H. G. Moore, R. Rodger, and C. Powell, Esqrs., and Major Scoones.)

Wm. Mitchell, beer-house keeper, High-street, Tunbridge, was summoned for wilfully damaging a wall at the back of the premises of a man named Geo. Juckes, to the extent of 16s., on the 12th inst. Mr. Rogers appeared for the defendant. After the case had been heard, the defendant said he was willing to repair the damage, and the case was accordingly dismissed, the defendant paying the costs.

 

From the Southeastern Gazette, 20 March 1866.

TUNBRIDGE. County Court.

The usual monthly sitting was held in the Town-hall, on Friday, before James ’Espinasse, Esq., judge. The cause list contained more cases than usual.

Kelsey v. Mitchell, and Jude v. Mitchell.

The defendant is a beerhouse keeper in the town, and the plaintiff in the first case, a brewer at Tunbridge Wells, sought to recover £6 19s. 4d. for beer supplied. An immediate order was made. In the second case, the plaintiff, also a brewer at Wateringbury, claimed £8 1s. 11d. under a judgment summons, and his Honour ordered a committal for forty days.

 

From an email received 28 August 2014.

I don't know if it went by another name previously but the first directory listing for it appears in 1938 when it is run by A. Richards.

In directories of 1959 to 1972 it is listed being run by Mrs E.G. Vivall.

In 2001 Planning Authority approval was granted to then owner L. Riley to convert the tavern into residential use. As a result the tavern closed and the building underwent extensive interior renovations and an addition was made to the rear. This work resulted in the creation of a large (800 sf) 2 BR flat on the main floor and two 1BR flats on the other floors.

This is all I can tell you about the tavern. It appears to be too new for me to undertake any further research as I am mainly interested in 19th century history of the town of Tunbridge Wells.

Regards...Ed Gilbert.

 

Written By: Edward James Gilbert-Thunder Bay, Ontario, Canada. Date: February 4, 2017.

THE WINDMILL TAVERN ON NORTH STREET.

OVERVIEW.

The history of this pub is not well defined as no listings for it in the Publican Directories is found until 1938 and yet it is known from census and other records that it was in operation at 32 North Street from at least the beginning of the 20th century. There are however several listings for beer retailers on North Street dating back into the 1870’s but the listings either provide no address for the establishment or list it at 12 North Street, which presents itself today as a 19th century red brick terrace home. The "Windmill Tavern" was named from it being in what was known as Windmill Fields, where a windmill once operated. In 1882 there was a public house on North Street called the “Star” run by William Pike. Whether the "Star" was the former name of the "Windmill Tavern" or not is a matter of speculation.

Local Michael Peters tells me that this is not the case and that the two although close together were definitely separate pubs which he remembers from when he was a lad. North Street and George Street linking each other. Paul Skelton.

An article from the Friends of Woodbury Park gave details about Jonathan Wheatley (1825-1878) and his wife Kezia (1829-1891) which stated in part that “Johnathan was an established brewer in Tunbridge Wells operating from the North Street premises that became the "Windmill Tavern" which was part of the Windmill Fields development of small properties by Charles Cripps, father of William Charles Cripps…”

Original Windmill Tavern

Above photo showing the original Windmill Tavern.

This article included the photograph shown above labelled as “The original Windmill Tavern in North Street” which looks nothing like the one at 32 North Street today, shown at the top of this article. If one relies on the accuracy of this account then the original tavern must have been demolished around the beginning of the 20th century to make way for the present building.

The "Windmill Tavern" was run by a number of licensed victuallers but many of their names are not clearly established due to ambiguous listings in directories. However it was confirmed that from at least 1901 the beerhouse keeper was Thomas William Styles (1867-1923) who was found at 32 North Street up to the time of his death at the "Windmill Tavern" in 1923. Who took over the tavern from him was not established but the 1938 Kelly directory gave the listing “Windmill Tavern, A. Richardson, 32 North Street, Tunbridge Wells.” From 1959 to 1972 the tavern was run by Mrs E. G. Vivall and in 2001 when approval was given to convert the tavern into a residence the applicant was Lance Riley of 32 North Street.

Those who frequented this tavern refer to it being “tucked away in an obscure location on North Street and it is not surprising that this very local local could not make ends meet”. Others state that “The Windmill Tavern on North Street is very amenable and doesn’t care what you look like. Its popular with old, the very old, and young. The food is good and the pool table is always empty”.

A review of Planning Authority records show that the "Windmill Tavern" was still in operation in 2001, when in that year approval was given to convert the tavern into three flats. The building still exists today as a residence.

LOCATION AND DESCRIPTION.

The Windmill Tavern, which closed in 2001 when it was converted into flats, was located on the south side of North Street just west of its intersection with George Street. Situated at the north end of North Street, at No. 32 the tavern was in an out of the way location away from any passing trade and thus was a true local pub.

The tavern derives its name from a tract of land called Windmill Fields located at the south-east intersection of Bayhall Road and Prospect. On this land was once a windmill called the Calverley Mill (demolished circa 1860) located near what now is St Peter’s Church on Bayhall Road. On this tract of land was constructed North Street, George Street, Park Street, Windmill Street, Windmill Court and St Peter’s Street to name a few. There is also reference on the south side of North Street just past Prospect Road of “The Old Dairy Flats” suggesting that there once was a diary at that location. A review of map from 1828 onwards shows that the aforementioned roads and buildings in Windmill Fields date to after 1828 but before 1832 when in that latter year there was a building of some type located on what became the site of the "Windmill Tavern."

North Street itself is a very narrow two lane road with no sidewalks with the buildings constructed along it up against the pavement. Apart from the "Windmill Tavern" and a church on the north side of the road towards Prospect Road and what was once a general provisioners shop and post office on the south east corner of Prospect and North Street the predominant type of buildings to be found are small red brick 2 storey terraces, typical of some 100 cottages built in the area by Charles Cripps. One of these terraces, now known as 32A North Street, abuts the "Windmill Tavern" on the west side and bears a striking resemblance to the building on the far right shown in the black and white photo of what is labelled as “The Original Windmill Tavern in North Street”. It appears therefore that the “New” Windmill Tavern was constructed to abut what is now 32A North Street.

Royal Tunbridge Wells map 1907

Shown above is a 1907 os map on which the location of the tavern is highlighted in red. A review of Planning Authority records from 1974 onwards shows that until 2001 there were no applications for Planning approval.

Windmill Tavern site map

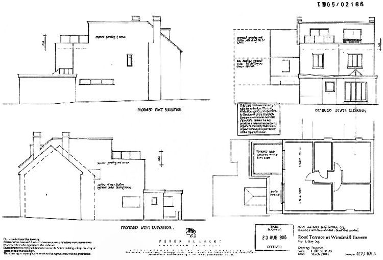
Shown above is a site map from the Planning files of 2005 showing the location of the tavern and shown below is an architects drawing of the tavern when an application was made for alterations by one of the residents.

Windmill Tavern plans

The Friends of Woodbury Park in Issue 12 (September 2011) of their newsletter on burials entitled ‘Jonathan Wheatley (1825-1878) and Kezia Wheatley (1829-1891) stated in part “Jonathan married Kezia Brown in her home village of Pyecombe near Brighton in 1855, and six years later was an established brewer in Tunbridge Wells operating from the North Street premises that became the Windmill Tavern. This was part of the Windmill Fields development of small properties by Charles Cripps, father of William Charles Cripps. After Jonathan died at the age of 52, Kezia carried on the family business and its associated “tap” in Goods Station Road while raising their surviving children”.

The "Windmill Tavern" as we see it today was a 2 storey building with dormers lighting the attic. It was constructed of red brick with a main floor area (based on Estate agents plans) of some 800 sf. Flat No. 3 in this building today is given as 640 sf and there is reference to a “top floor flat” which no double refers to the flat in the attic area. More recently this building was offered for sale as a 3BR house.

The sides and back of the building were rendered and painted white. The front façade of the building is quite attractive being covered with green glazed tiles; arch top windows on the main floor with square top windows above. Some nice decorative stonework can be seen around the door and windows and on other parts of the front façade. When this building was constructed is not known but it presents itself as having been built in the last quarter of the 19th century. From the photographs given in this section note the image of a Windmill on the top right corner of the front of the building.

A review of Planning Authority records for 32 North Street and the "Windmill Tavern" from 1975 onward shows no applications were made for these premises from 1975 up to 2011 when in that year approval was given for conversion of the tavern into a dwelling. This work included internal alterations and demolition of part of the ground floor at the rear with extensions. Unfortunately the name of the applicant was not given and nor were any drawings showing the existing and proposed buildings. Since its conversion there have been a number of applications for Planning approval throughout the years 2002 to 2006 for a roof terrace (2005) and a conservatory (2004) and other minor work.

 

It is believed by the researcher that the pub on North Street given in the 1882 Kelly directory as the ‘Star run by William Pike is the same as the Windmill Tavern but no street address was given for the ‘Star’ other than “North Street”. It is also interesting to note that the directory of Public Houses for Kent from 1867 to 1934 never lists the Windmill Tavern and only first appears in these directories in 1938, even though it is known from census and other records that the Windmill Tavern was there from at least the beginning of the 20th century.

Windmill Tavern collection

Shown above from Facebook is a composite image of the Windmill Tavern which had for a time been one of the pubs owned by E& H Kelsey’s Culverden Brewery, a fact which can be seen clearly in the largest of these four images just to the left of the Windmill Tavern sign on the front of the building. The small image in the middle of the group shows a pub sign hanging off the front of the building.

 

[1] WILLIAM MITCHELL

No records were found that directly links William Mitchell to the Windmill Tavern and he only appears as a beer retailer in the 1881 census at 12 North Street and as a beer retailer on North Street in the 1874 and 1882 Kelly directories but no street address is given.

I have found reference to William Mitchell as being at the pub as a beer retailer in 1866. Paul Skelton.

William Mitchell was born 1842 in Tunbridge Wells, one of five children born to George Mitchell, born 1821 at Maresfield, Sussex and Caroline Mitchell, nee Turns, born 1822 in Kent (given variously as Tunbridge Wells and Southborough). George and Caroline were married in 1841.

The 1851 census taken on North Street, Tunbridge Wells, gave George Mitchell as a labourer. With him was his wife Caroline and their four children William, a scholar, Hariett, born 1844; George, born 1846 and James, born 1850. All of the children were given as being born in Tunbridge Wells.

The 1861 census, also taken on North Street, gave George as a coal merchant. With him was his wife Caroline and their children William, an apprentice wood turner; George, a coal heaver; James, a scholar and a nurse child by the name of Eliza Haynes, born 1856 in Tunbridge Wells who was also attending school.

Sometime between 1861 and 1871 William Mitchell married Sarah Surrell who had been born 1841 at Flimwell/Flinwell, Sussex. The 1871 census, taken at 18 Windmill Fields, Park Road, gave William as a wood turner. With him was his wife Sarah who was a greengrocer. Also there was an adopted son George Richard White, age 2 mths.

The 1874 and 1882 Kelly directory gave William Marshall as a beer retailer. The 1881 census, taken at 12 North Street gave William as a beer retailer. With him was his wife Sarah, his mother in law Hannah Sorrell/Surrell, age 64 and William’s adopted son George Richard White, age 10.

The 1891 census, taken at 26 Park Street, Tunbridge Wells, gave William as a “wood dealer timber”. With him was his wife Sarah; his mother in law Hannah Surrell, age 73 and their 20 year old adopted son George Richard White, a carter.

In September 1899 William’s wife Sarah passed away and was buried in the Tunbridge Wells Borough Cemetery on September 29th. The 1901 census, taken at 26 Park Street gave William as a widow and working as a coal and wood merchant. With him was just his adopted son George Richard White, a carter.

William Mitchell died in Tunbridge Wells in October 1907. There was no probate record for him. William was buried in the Tunbridge Wells Borough Cemetery on October 24, 1907.

Based on the above it can be seen that William Marshall was from at least 1874 until 1882 a beer retailer at 12 North Street. Today 12 North Street presents itself as one of similar terrace homes along that road being located quite some distance from the Windmill Tavern at No. 32, suggesting that William was not a licensee of the Windmill Tavern but rather a person selling beer from his residence. There is no evidence that the buildings on North Street were renumbered and so one cannot conclude that No. 12 became No. 32 later.

 

[2] J. SMITHERS

The Licensee list gave J. Smithers as a beer retailer on North Street in 1891 indicating that this was a census record. At the time of the 1891 census in Tunbridge Wells there was a James Smithers, born 1846 Capel, Kent who was a printer who had his wife Charlotte and widowed mother Mary Smithers living with him at 1 Shaftsbury Rd, Tunbridge Wells (nowhere near North Street). There was also a John Smithers at 71 St John’s Road, who was a publican, born 1834 in Cowden, Kent. Living with him was his wife Susan, born 1834 in Chiddingstone, Kent and their 30 year old daughter Emma and one boarder. What connection, if any, either of these men had with the Windmill Tavern, is not known.

 

[3] THOMAS WILLIAM STYLES

Thomas is the first confirmed publican of the Windmill Taverm. He is listed there in the 1903 and 1913 Kelly directories; in the 1901 and 1911 census, and in his probate record of 1923 indicating that he was the licensee from at least 1901 up to and including January 1923.

Thomas was born 1866 at Hunton, Kent and baptised there as William “Stiles” November 25, 1866, the son of Thomas and Hannah Stiles.

Thomas lived with his parents and attended school in Hunton from 1866 to at least 1891. The 1891 census, taken at The Square in Nettlestead in Hunton gave Thomas “Styles” as an agricultural labourer born 1834 at Goudhurst, Kent. With him was his wife Hannah, born 1842 at Hunton and six of their children, including their son Thomas who was working as a bricklayers labourer.

Sometime after 1899 and before 1901 Thomas moved to Tunbridge Wells. The 1901 census, taken at 32 North Street (The Windmill Tavern) gave Thomas as a beerhouse keeper on own account. With him was his wife Emma, born 1876 in Marden, Kent and their two children Frank Stanley born in Hunton in 1895 and Edith, born in Hunton in 1899. Also living with him was his brother in law Sidney Styles, born 1880 in Marden, a grover domestic.

The 1911 census taken at “32 North Street, Windmill Farm” gave Thomas as a licensed victualler on own account at home. With him was his wife Emma and their four children. In addition to Frank Stanley, who was working as an apprentice upholsterer,and Edith who appears to have died young, there was Patience Eve, born 1906 in Tunbridge Wells, and Nellie, born 1910 in Tunbridge Wells. Also there was one niece Edith Louise Styles, born 1899 in Hunton. The census recorded that the premises consisted of seven rooms; that the couple had been married 16 years and that they had three children all of whom were living, which based on the census records is incorrect for they actually had four children.

Probate records gave Thomas William Styles of the Windmill Tavern, North Street, when he died January 9, 1923. The executor of his 104 pound estate was his widow Emma Styles. Thomas was buried in the Tunbridge Wells Borough Cemetery on January 12,1923. When and where his wife died was not established and all that is known is that she was not buried in the Tunbridge Wells Borough Cemetery.

 

[4] John Balcombe

From the licensee list above was given John Balcome at the Windmill Tavern from the 1918 Kelly directory, however this is in error for John Balcombe appears in the 1918 Kelly directory as a beer retailer at 5 Culverden Down, nowhere near North Street.

 

[5] A. RICHARDS

The 1938 Kelly directory gave the listing of A. Richards as the licensee of the Windmill Tavern. No other definitive information about him was found.

 

[6] MRS. E. G. VIVALL

Local directories throughout the period of 1959 to 1972 give the licensee of the Windmill Tavern as Mrs E. G. Vivall. No other definitive information is known about her.

 

The building is now (2018) a private residence.

Mary Harris of the Courier newspaper group tells me the following:- As for June 2021 the top floor flat is for sale with a guide price of £235,000 with agents Freeman Forman which describes it as "stunning" with two private balconies and a large double bedroom.

Planning documents at Tunbridge Wells Borough Council shows that papers in 2002 had given permission to convert the pub into a house. But instead of pursuing that idea, the owner two years later submitted a successful application to convert it into three flats.

Later that year, an application to change the use and extend a redundant outbuilding to create a "self contained annexe" was refused.

Windmill balcony 2021

Above photo showing the balcony, 2021.

There was concern it would be used as a separate place to live with "inadequate living and amenity provisions" and with no direct means of access.

But council documents state, when the property was sold in 2015, the annexe had already been built. Papers describe the work as being carried out in 2006. In 2019, the council granted a certificate of lawful existing use, as it was satisfied the building had been "continuously used as an incidental annexe for more than 10 years".

 

Former Windmill Tavern 2021

Above photo 2021, from https://www.primelocation.com

Former Windmill Tavern 2021

Above photo 2021, from https://www.primelocation.com

 

LICENSEE LIST

MITCHELL William 1866-82+ (age 39 in 1881Census)

SMITHERS J 1891+

STYLES Thomas William 1901-13+ (age 34 in 1901Census)

BALCOMBE John 1918+

STYLES T W 1922+

RICHARDS A 1938+

VIVALL E G Mrs 1959-72+

CARRIETT Frank A 1993-2001

RILEY Lance 2001+

https://pubwiki.co.uk/NorthStreet32.shtml

http://www.closedpubs.co.uk/windmill.html

 

CensusCensus

 

If anyone should have any further information, or indeed any pictures or photographs of the above licensed premises, please email:-

TOP Valid CSS Valid XTHML